Rumah Rahman A

Satu Tingkat | 22' X 65' | Dari 800 kaki persegi

Rahman A

Dua Tingkat | 22' X 70' | Dari 1,350 kaki persegi
3 Bilik 2 Bilik Air 1 Pakir

Dibina dengan konsep 'Komuniti Berpusat', Taman Seri Lestari mengutamakan asas kehidupan lestari iaitu kehidupan yang fleksibel, keseimbangan hifup dan komuniti hijau.

Komuniti Berpusat

Kelestarian Pembangunan

Komuniti Pada Kehijauan

Ciri Keselamatan

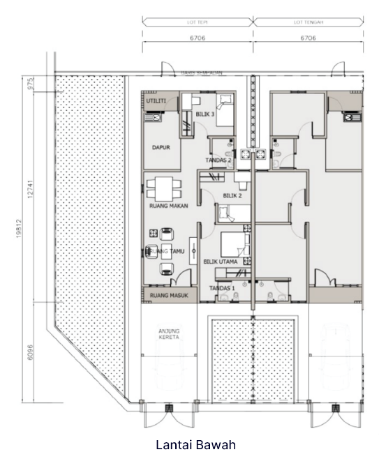
Pelan Lantai

Intermediate Unit

SAIZ UNIT
22′ X 65′
KELUASAN UNIT
800 sqft
BILIK
3
BILIK AIR
2
PARKING
1

Jadikan Ruangan Impian Anda Satu Realiti

Rumah Rahman A - Ruang Tamu

Konsep ruangan pelan yang terbuka menjadikan keharmonian dalam kehidupan anda.

Direka Khas
Untuk Gaya Hidup

Rumah Rahman A - Bilik Utama

Menikmati Keindahan
Dan Kedamaian Alam Semulajadi

Taman Seri Lestari dikelilingi oleh taman berlandskap seluas 3.4 hektar
menjaminkan kepelbagaian aktiviti untuk setiap warga komuniti.

Pejabat Urusan dan Galeri

4820, Tingkat Bawah, Jalan Pejabat
20000 Kuala Terengganu, Terengganu Darul Iman

Disclaimer: Any sketches, illustrations, renderings, images, pictures, amenities, food services, resort services, unit finishes, designs, materials, plans, specifications, art and/or visuals shown and featured in this brochure including the interior design concepts, colour schemes and suggested furnishings in the completed unit/development are artist’s impression and for illustrative purposes only and shall not be taken as a representation, express or implied, of the final detail of the exterior or interior of the actual development or a unit that is to be or is being purchased by the purchaser or of the items that will be delivered with the purchaser’s unit/ the development. The design and construction of the development is subject to first obtaining the appropriate authority’s approval(s) which may require the developer to alter any design, plan, or layout depicted. Accordingly, the developer expressly reserves the right to modify, revise, or withdraw any or all of the same without any liability being incurred by the developer. In the event of any discrepancy between the sale and purchase agreement and the information, perspectives and plans contained in this brochure, the terms of the sale and purchase agreement which form the entire agreement between the purchaser and the developer shall prevail.